

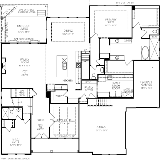
Wide hallways and doors, an open living area, and large, comfortable bedrooms is what you can look forward to in this gorgeous Wilshire plan. One of Drees' signature Universal Designs, you will easily be able to navigate through the modern interior and love the upgradeable options throughout! Add-ons include quad-sliding doors to an extended outdoor living space, a wine room off the family room, and intricate ceiling features. Boasting a main-level primary and guest suites, additional bedrooms and a large gameroom can be found on the second level. Max out the upstairs by adding a media room, second story balcony and a powder bath.