


























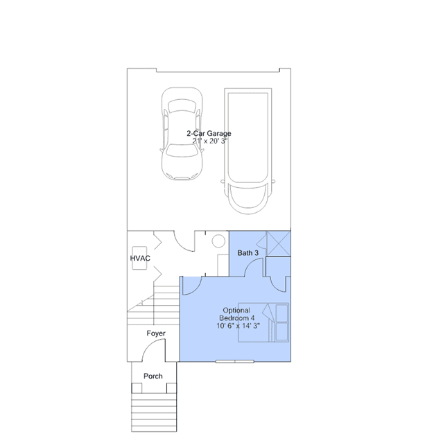
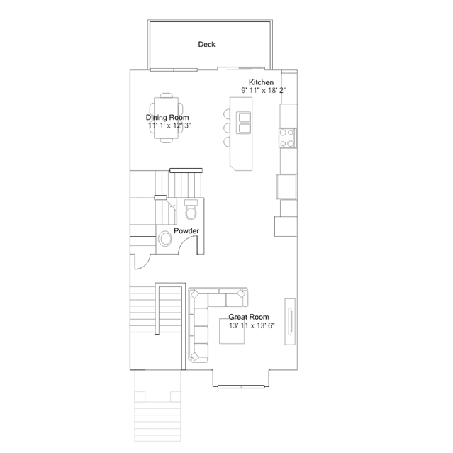
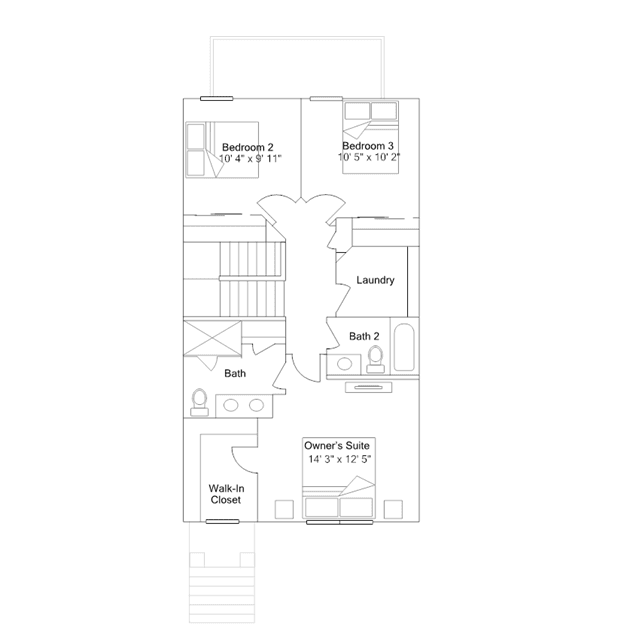
This three-story home is perfect for those who desire space and privacy. On the ground floor is the 2-bay garage and a storage area. A staircase leads to the open concept living area on the second floor, which comes equipped with a dining room, kitchen and Great Room with a deck in the back. On the third floor is a laundry room and three bedrooms, including the owners suite with a full bathroom and walk-in closet.