

Get additional information including price lists and floor plans.


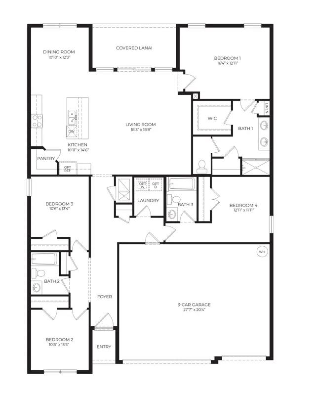
Discover the Madison, a versatile single-story home at Fountain View in Ormond Beach, Florida. This spacious layout includes 4 bedrooms, 3 bathrooms, and a 3-car garage, making it perfect for modern family living. Inside, the open-concept design seamlessly blends functionality and comfort, ideal for daily living and entertaining. The chef-inspired kitchen features stainless steel appliances, a large center island, and an expansive walk-in pantry, overlooking the living and dining areas. Enjoy the Florida weather year-round with easy access to the covered lanai from the living space. Each bedroom offers comfort and privacy with carpeted floors and ample closet space. The primary suite, at the rear of the home, includes an en-suite bathroom with a walk-in closet, double vanity, and walk-in shower. Additional bedrooms are well-sized, with two sharing a bathroom and...
Stay informed with Livabl updates on new community details and available inventory.