


























Images coming soon
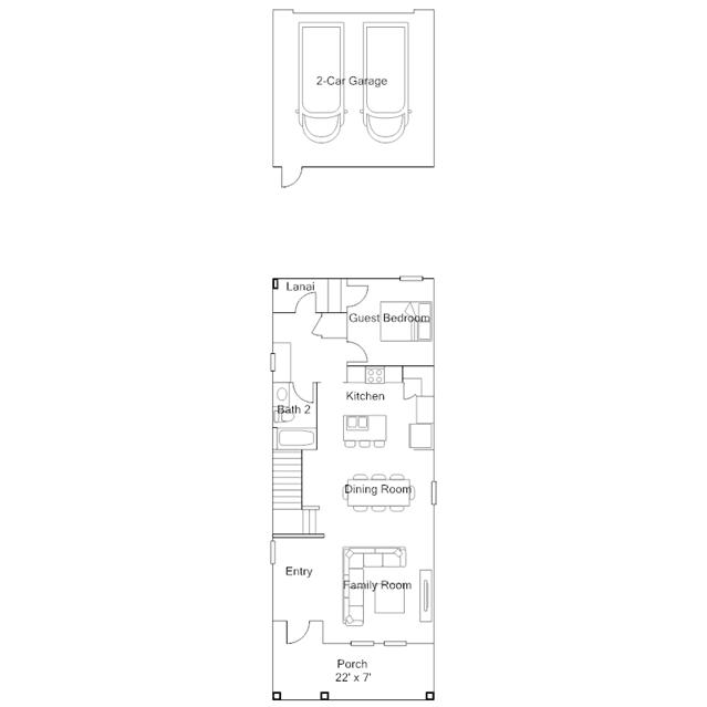
This new two-story home design combines comfort and elegance. It features a large first-floor foyer and family room right inside the entry, plus a dining room for memorable meals, a kitchen for inspired cooks, a bedroom ideal for overnight visitors and a lanai for outdoor living. Upstairs are two secondary bedrooms and the lavish owners suite with a full-sized bathroom.