


















































Images coming soon
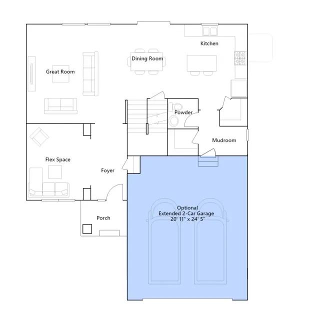
This new two-story home features a contemporary design. The first floor showcases a Great Room flowing seamlessly into a nook and kitchen with a corner pantry, while flex space offers versatility. Upstairs are three secondary bedrooms, a luxe owners suite and a laundry room.
Stay informed with Livabl updates on new community details and available inventory.