
























































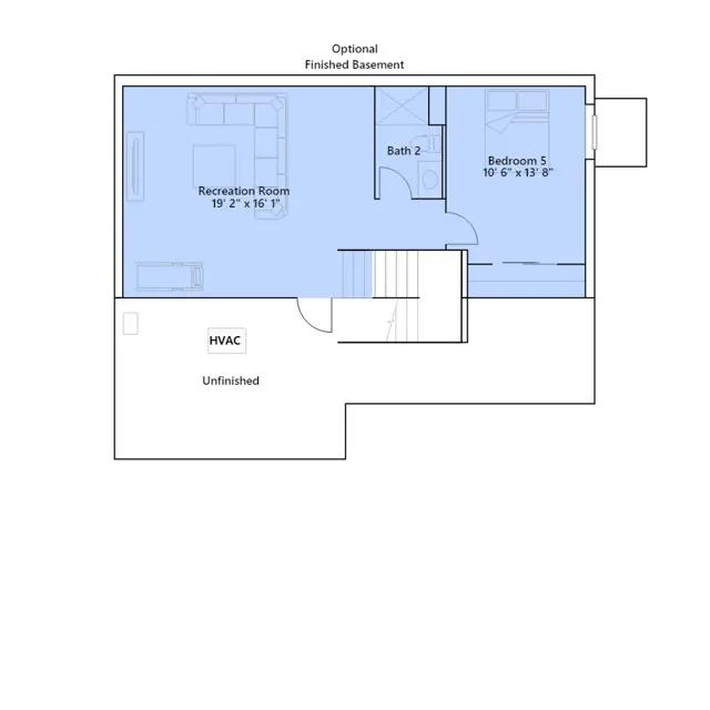
This new two-story home offers space for the whole family to thrive. The first floor features an open design among the Great Room, dining room and kitchen, while a flex room offers versatility. Upstairs are three secondary bedrooms and a spacious owners suite.
Stay informed with Livabl updates on new community details and available inventory.