

































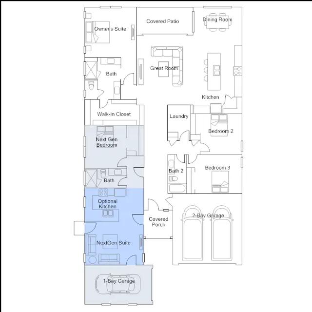
This single-story residence is a Next Gen home design that is perfect for those who need space, with an attached suite that features its own kitchenette, living room, bedroom, bathroom and private entrance. Two additional bedrooms are across the hall, beside the open living area, plus there is an owners suite in the back for added privacy.