





















































Get additional information including price lists and floor plans.
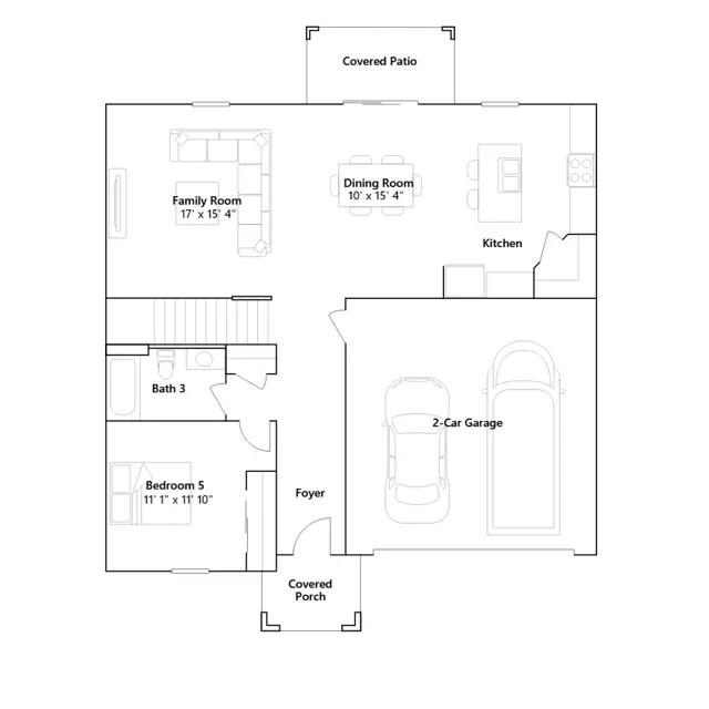
The first floor of this new two-story home is host to an inviting open-concept layout with access to a covered patio, and a convenient bedroom and full bathroom are located near the foyer. Upstairs, four additional bedrooms surround a versatile loft, including the owners suite with a spa-inspired bathroom and generous walk-in closet.
Stay informed with Livabl updates on new community details and available inventory.