





















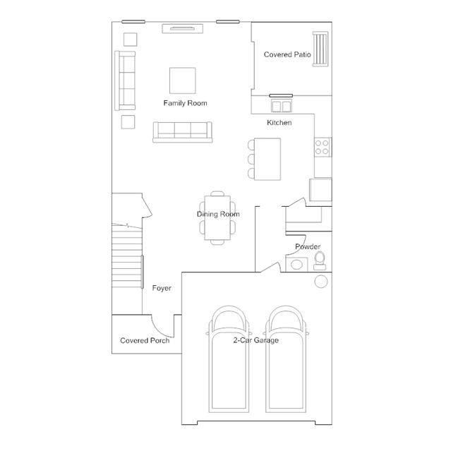
The largest plan in this collection showcases a modern open-concept floorplan on the first floor among the kitchen, family room, dining room and patio. Upstairs, a loft leads to two bedrooms and the comfortable owners suite, while a bonus room can become an extra bedroom, study or office space.