



















































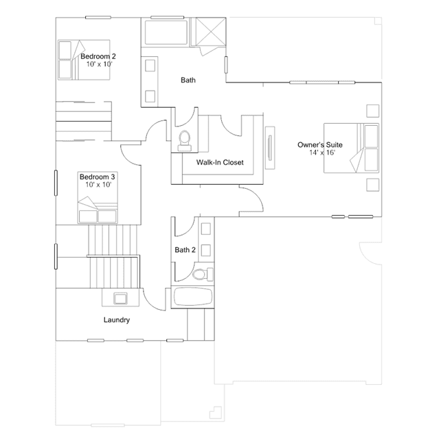
This new two-story home has a family friendly design with an inviting open floorplan on the first floor consisting of a stylish kitchen, dining room and Great Room. The California Room off the main living area offers enhanced outdoor living. A secondary bedroom and full bathroom can be found near the entry. Three additional bedrooms are located upstairs, including the expansive owners suite with an en-suite bathroom and walk-in closet.