
























Images coming soon
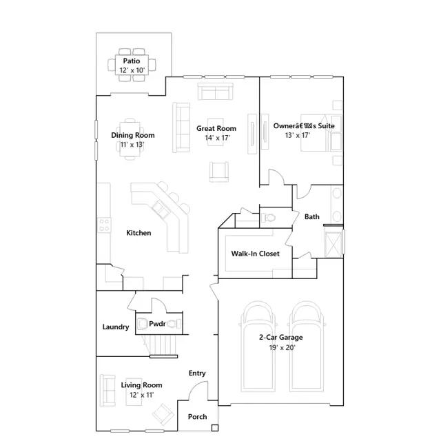
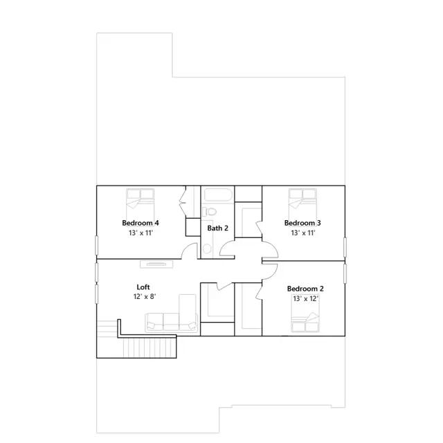
This new two-story home features a formal living room off the entryway, while down the hallway is an open-concept kitchen which overlooks the Great Room and dining room. Through sliding glass doors is a desirable patio. On the same level is the luxurious owners suite with a private bathroom and walk-in closet. Upstairs is a spacious loft surrounded by three additional bedrooms.
Stay informed with Livabl updates on new community details and available inventory.