



























































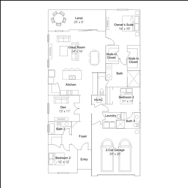
Designed on a single story, this home is great for family life. Off the foyer is a separate bedroom perfect for guests, along with a den that can transform for various needs. The open layout among the Great Room and kitchen leads to a spacious lanai for versatile living, while the owners suite is tucked toward the back for increased privacy. An additional suite is great for teenage residents.