





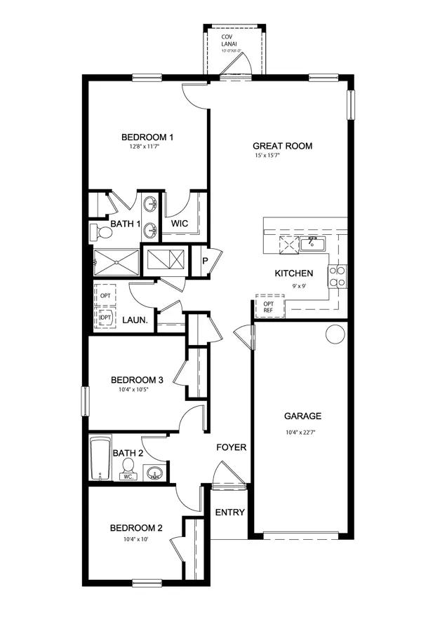
The Layton floorplan in Peachland is a one-story single-family home with three bedrooms and a one-car garage. Every inch of this 1,239 square foot home is thoughtfully utilized to enhance the homes grand feel. When you first enter the home, you enter a long foyer hallway with two bedrooms that share a bathroom and a separate laundry room with two closets nearby for storage. The foyer opens into the open concept main living space in the home, including the great room and the kitchen. The kitchen is appointed with quartz countertops, stainless steel appliances, shaker-style cabinets, and a peninsula perfect for bar-style dining. The primary suite offers a peaceful sanctuary away from the rest, nestled in the back of the home. With a spacious walk-in closet and en suite bathroom with dual sink vanity and linen closet, you will truly feel right at home. Contact ...