























Images coming soon
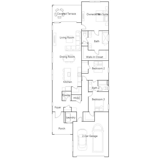
This single-story home combines low-maintenance living with plenty of room to grow and entertain. Upon entry, a seamless open-concept layout is situated among the kitchen, dining room and living room, with a covered terrace to provide outdoor moments. On the opposite side of the home, there are two secondary bedrooms split by a Jack-and-Jill style bathroom for enhanced livability. In a private corner, the owners suite provides a tranquil retreat with a spa-style bathroom and walk-in closet.
Stay informed with Livabl updates on new community details and available inventory.