
























































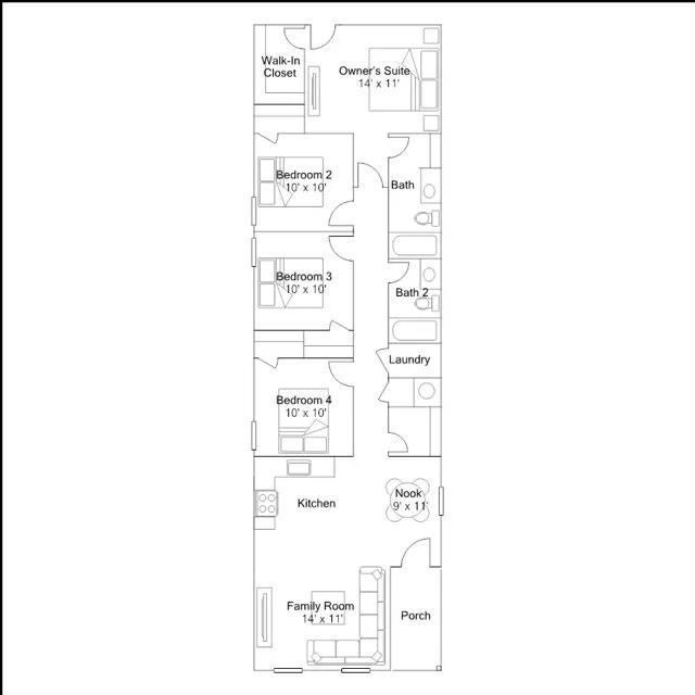
This single-story home offers everything you need on one level. Enter into the open layout that is host to the family room, dining nook and kitchen. The hall leads to three secondary bedrooms all side-by-side, along with a laundry room and bathroom on the other side of the walkway. In the back of the home is the owners suite complete with a private bathroom and walk-in closet.