




























































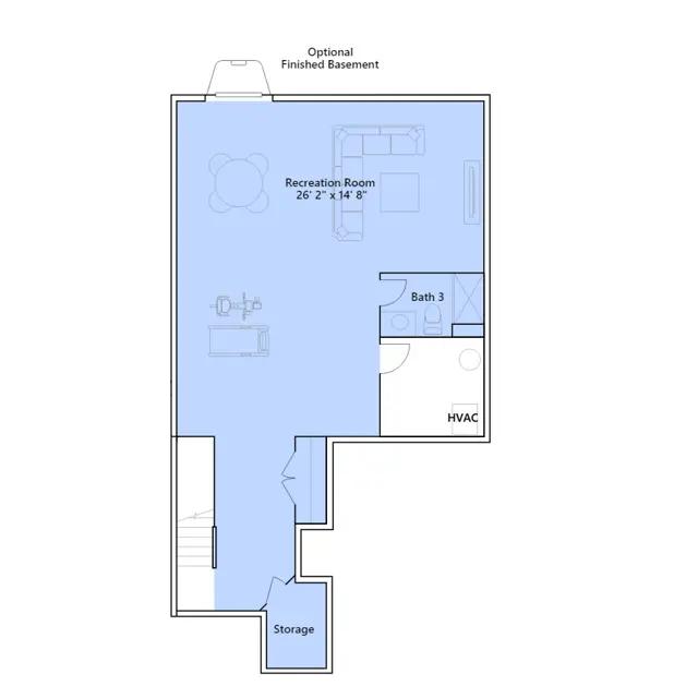
This two-story home features an open and inviting layout, and an unfinished basement offers limitless possibilities. On the primary floor is an open-concept floorplan that seamlessly connects the kitchen with the living and dining areas, and the owners suite enjoys a secluded corner for optimal privacy. A versatile loft area and two additional bedrooms can be found upstairs.