














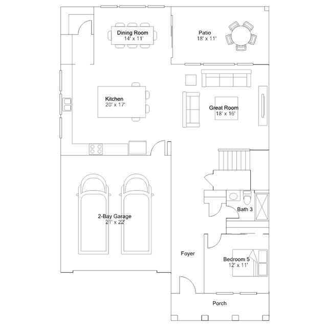
On the first level of this two-story home, a spacious open floorplan is shared between the kitchen, dining room and Great Room, offering access to a patio for outdoor entertainment. A secondary bedroom is located just off the entryway, which is great for an office or guest room. Upstairs are four bedrooms and a versatile loft, including the luxe owners suite, which is comprised of a spacious bedroom, en-suite bathroom and walk-in closet.