





















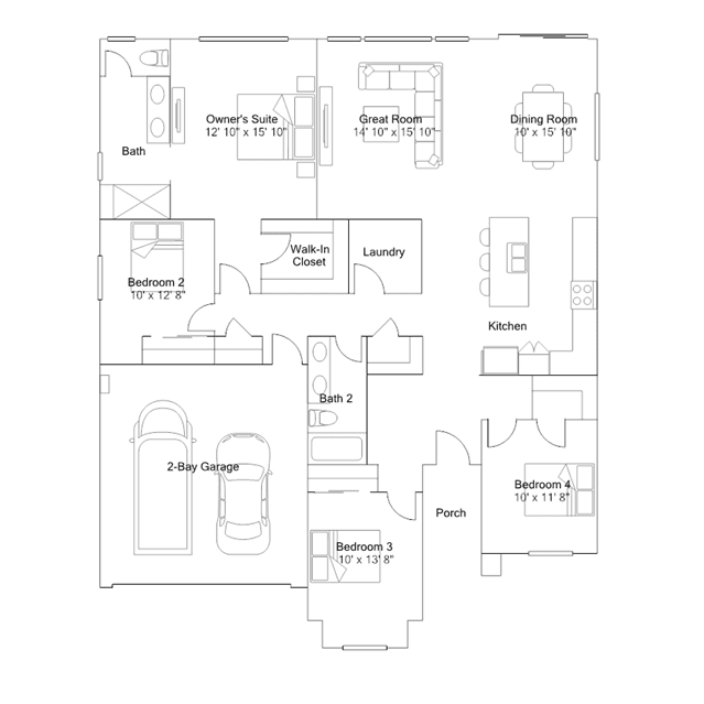
This single-story home has a comfortable layout that makes smart use of the available space. The front door leads to a foyer with a bedroom on either side, while down the hall is the open concept living area which features a kitchen, dining room and Great Room. Tucked into the back corner of the home are two additional bedrooms including the owners suite, which has a full bathroom and walk-in closet.