







































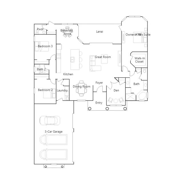
The Great Room, kitchen and dining areas of this single-level home share a convenient and contemporary open floorplan, offering direct access to the lanai through sliding glass doors. A den off the foyer is perfect as a home office or yoga studio. The owner's suite is privately situated at one end of the home, while two secondary bedrooms are located on the opposite side.