




















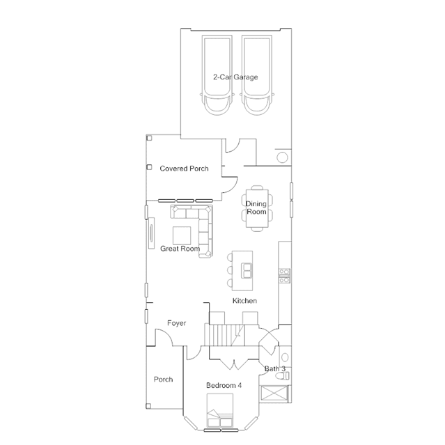
This new two-story home was designed to meet the needs of large or growing families. On the first floor, the Great Room connects with the kitchen and casual dining area in an open-plan layout that maximizes the homes shared-living space. A bedroom situated off the foyer offers privacy. On the second floor, two secondary bedrooms and a luxe owners suite with a tray ceiling, luxe bathroom and large walk-in closet are restful retreats.