




















































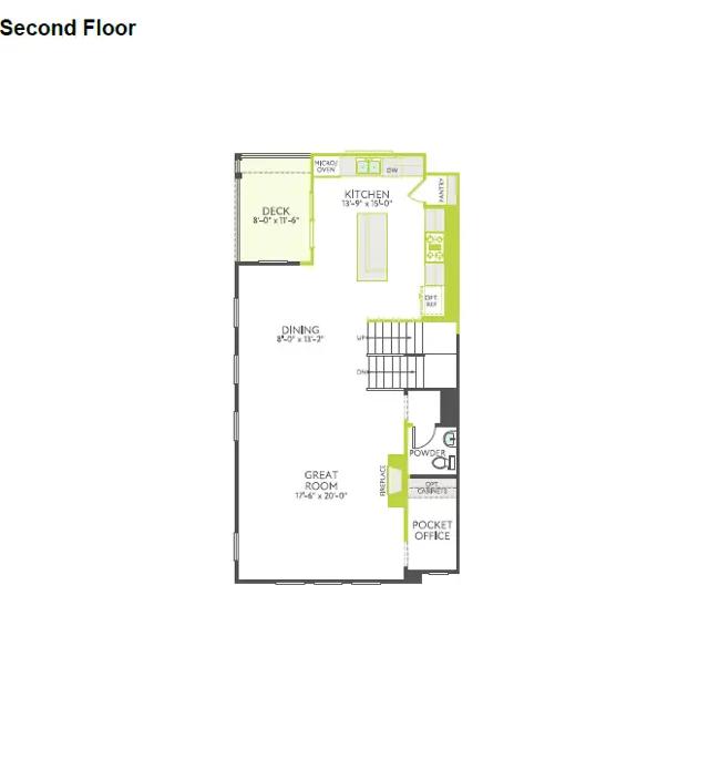
The Shelby includes a 2-bay attached, front load garage, a drop zone right off the garage, and a first floor flex space. The gourmet kitchen upgrade is the perfect addition for any family looking to entertain all complimented by a stunning island with plenty of space for family gatherings. Across from the kitchen, youll find a cozy great room and pocket office. On the third floor you will find the spacious primary suite accompanied by two additional bedrooms.
Stay informed with Livabl updates on new community details and available inventory.