



















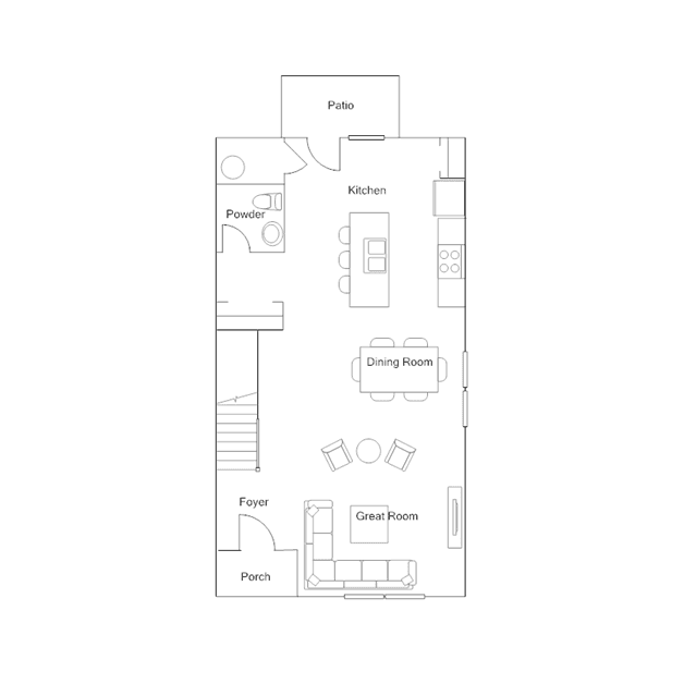
This two-story home boasts a great layout with the first floor highlighting an open concept design among the shared living areas. On the top level are all three bedrooms, including the owner's suite with a large walk-in closet and en-suite bathroom.