

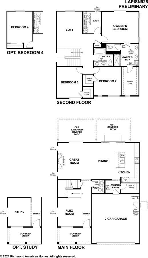
The main floor of the beautiful Lapis plan offers an inviting great room and an open dining area that flows into a corner kitchen with a center island and walk-in pantry. This level will either feature a flex space or a study. Upstairs, enjoy a convenient laundry and a luxurious primary suite. This second floor will be built with either a loft or an extra bedroom. Additional features may include a cozy great room fireplace. You'll love the professionally curated finishes!