




























































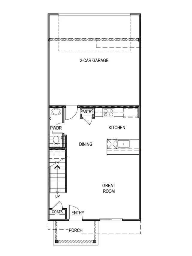
Our Walker floorplan is a cozy home option in our Monarch community. With 3 bedrooms, 2.5 bathrooms, and 1,347 sq. ft., you can find yourself right at home in this two-story attached townhome. This floorplan offers three exterior options: Farmhouse, Craftsman, or West Coast. Choose which one fits your personal style. When you step off the porch and through your front door, the open-concept first floor will greet you. The great room, dining area, and kitchen flow together. Your kitchen will feature modern shaker-style cabinetry, quartz countertops, and stainless steel appliances. On the first floor, youll also have access to a powder room and coat closet. At the back of the home, step through to the 2 car garage. The second floor opens to a loft upstairs. Your washing machine and dryer are stored in a separate closet for easy laundry access. On this floor, youll...
Stay informed with Livabl updates on new community details and available inventory.