




























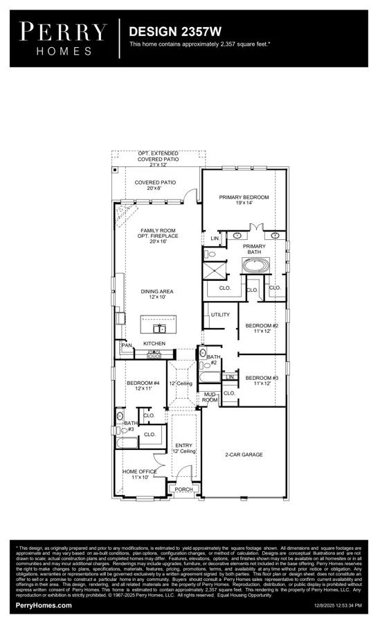
Extended entry highlights 12-foot coffered ceiling. Home office with French doors set at entry. Dining area flows into open family room with wall of windows and wood mantel fireplace. Open kitchen offers extra counter space, a 5-burner gas cooktop, corner walk-in pantry and generous island with built-in seating space. Spacious primary suite. Double doors lead to primary bath with dual vanities, a freestanding tub, separate glass-enclosed shower and two walk-in closets. Private guest suite with full bathroom and walk-in closet. All bedrooms include walk-in closets. Extended covered backyard patio. Mud room off two-car garage. Representative Images. Features and specifications may vary by community.
Stay informed with Livabl updates on new community details and available inventory.