







































Get additional information including price lists and floor plans.

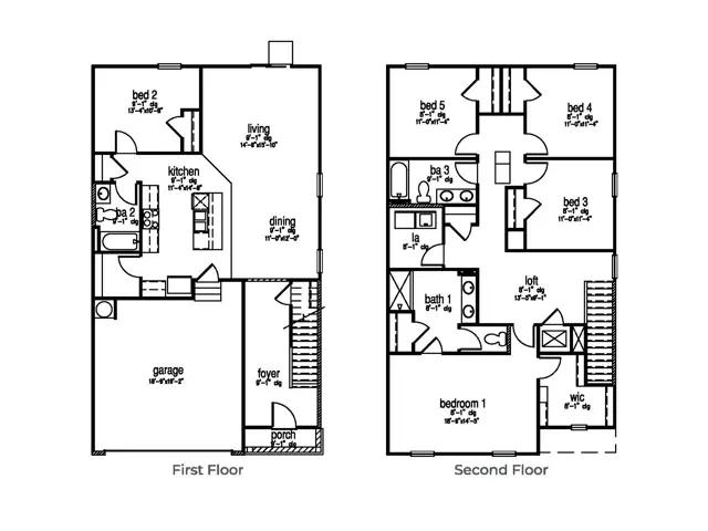
The Robie is one of our two-story floorplans featured in The Retreat at East Argent. This 5 bedroom, 3 bathroom home is a buyer's favorite! Inside, you'll find comfortable living in this smartly planned home. The kitchen is the heart of the home, open to the spacious living and dining room, making it perfect for everyday living and entertaining. It's complete with stainless steel appliances, a center island, and a massive walk-in pantry, making meal prep easy. Completing the main level is a secondary bedroom/office serviced by a main level full bath, offering great flexibility. Upstairs, the large primary suite features its own attached bathroom with a double vanity bath, large walk-in shower, and massive walk-in closet, giving you all the space you need to get ready in the morning. Three secondary upstairs bedrooms with large closets are generous...
Stay informed with Livabl updates on new community details and available inventory.