












































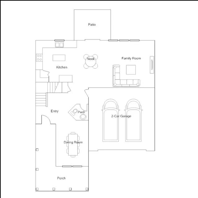
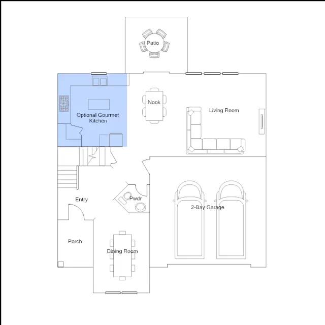
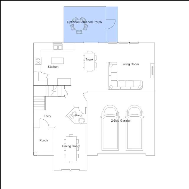
This spacious two-story home features a formal dining room and an open living area that flows to the outdoor patio on the first floor. Upstairs is a loft surrounded by the owners suite with a private full-sized bathroom and three secondary bedrooms.
Stay informed with Livabl updates on new community details and available inventory.