
































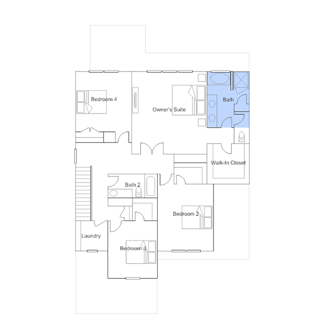
This expansive two-story home features a bright study room and formal dining area near the foyer, which leads into the open concept family room and outdoor patio. Also on the first floor is a bedroom suite ideal for overnight guests. On the second level are four bedrooms, including the owners suite.
Stay informed with Livabl updates on new community details and available inventory.