

































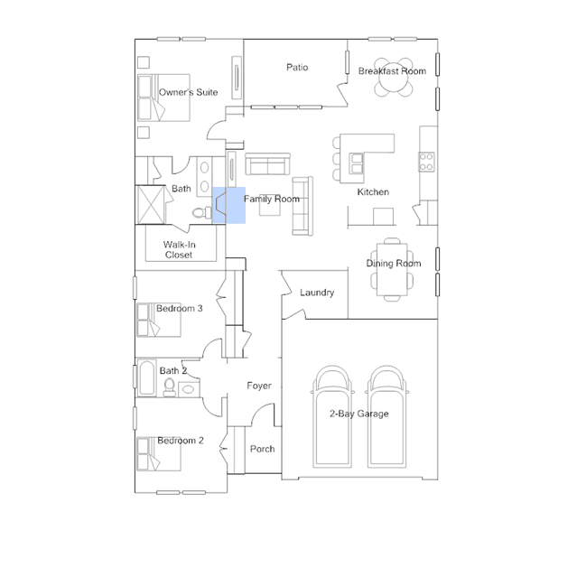
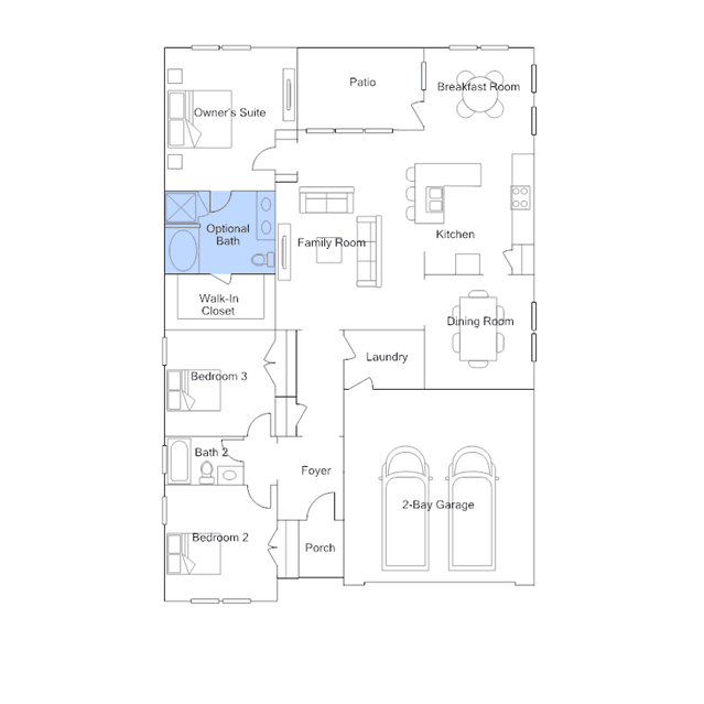
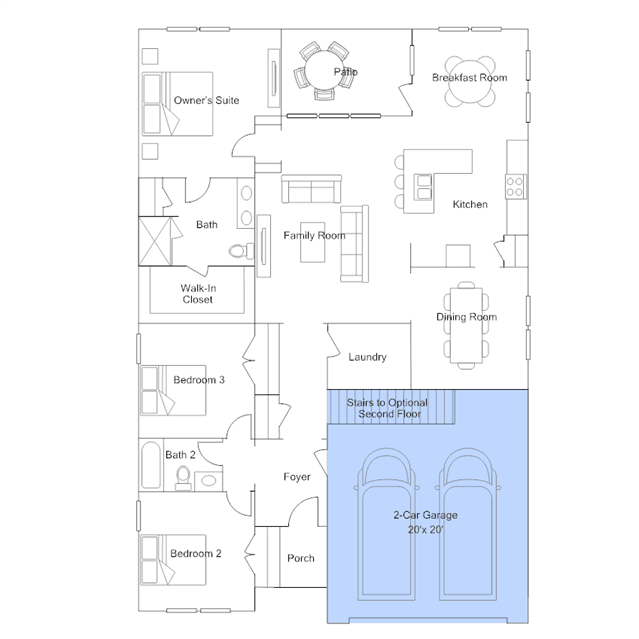
The Litchfield is one of Lennar's most popular floorplans and its not hard to see why! This home features a formal dining room and an open-concept family room, kitchen and breakfast room with access to the patio for outdoor entertaining. There is a total of three bedrooms, including the owners suite. An optional second floor adds a fourth bedroom and bonus room.
Stay informed with Livabl updates on new community details and available inventory.