




































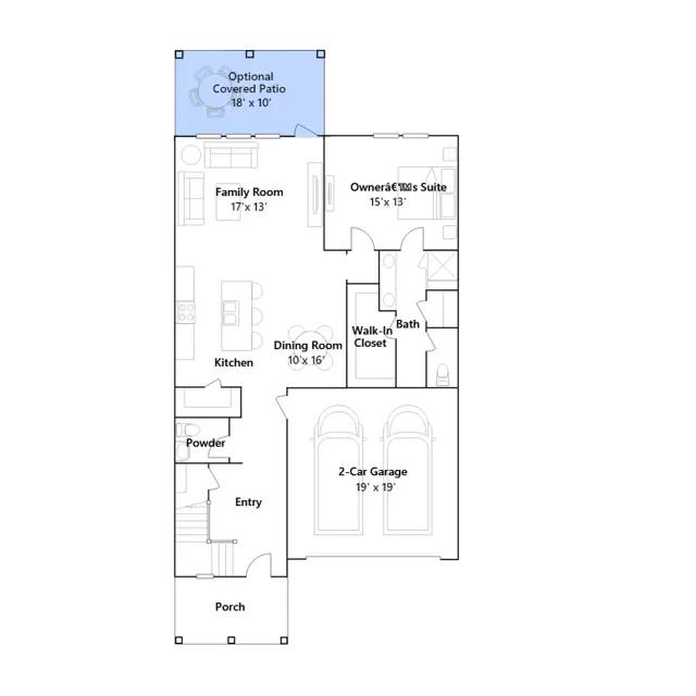
This two-story home is the largest plan in the collection. The entryway features elegant tall ceilings and extends to an open living space with access to the outdoor patio. Tucked away on the first floor is the owners suite for extra privacy. Upstairs is a loft surrounded by four bedrooms.
Stay informed with Livabl updates on new community details and available inventory.