



































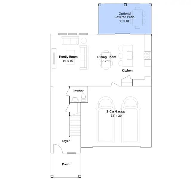
This spacious two-story home features a contemporary open layout among the family room, kitchen and dining room, with access to a patio for seamless indoor-outdoor living. Upstairs is a loft surrounded by three secondary bedrooms and the luxe owners suite, which includes an adjoining bathroom and walk-in closet. Rounding out the home is a two-car garage to add versatile storage space.
Stay informed with Livabl updates on new community details and available inventory.