

























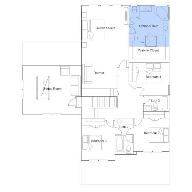
This expansive two-story home features a formal dining room, living room and an open living space with sliding doors that extend to the patio for outdoor living. Upstairs is a spacious bonus room ready to be transformed and three bedrooms. In addition to this is the owners suite with a retreat and full-sized bathroom.
Stay informed with Livabl updates on new community details and available inventory.