
























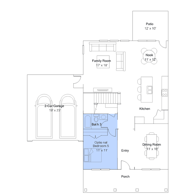
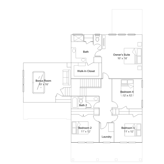
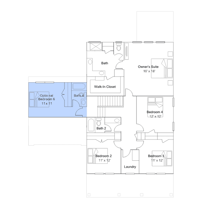
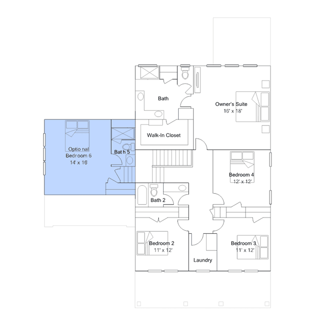
This spacious two-story home features a living room, formal dining room and an upstairs bonus room ready to be transformed. There is an open living space on the first floor that extends to the patio for outdoor living. There is a total of four comfortable bedrooms.
Stay informed with Livabl updates on new community details and available inventory.