
























































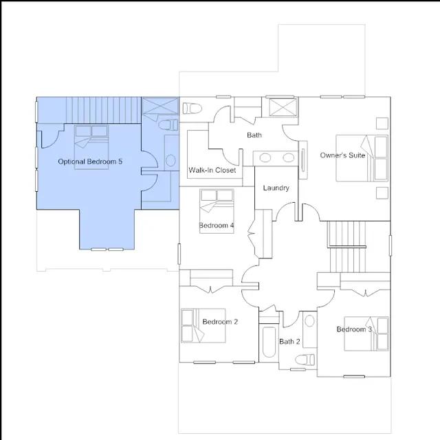
This spacious two-story home features a formal dining room, living room and an open living space with quick access to the patio for outdoor living. Upstairs is a bonus room with endless possibilities, three secondary bedrooms and the owners suite.
Stay informed with Livabl updates on new community details and available inventory.