




















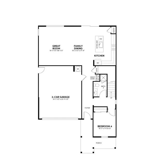
Flexibility meets style in this dynamic two-story design. Spanning 2,184 square feet, Residence 2 adapts brilliantly to your family's changing needs, starting with a convenient first-floor bedroom that works equally well as a guest suite or home office. The main level's open-concept layout creates an effortless flow between spaces, while the optional outdoor patio beckons you to embrace Roseville's indoor-outdoor lifestyle. The upper level reveals three additional bedrooms, anchored by a spacious primary suite that feels like a private retreat. A versatile loft adds another dimension to daily living, while the option to transform the fourth bedroom into a dedicated study provides the perfect solution for remote work. From top to bottom, Residence 2 anticipates your needs with spaces that grow and adapt alongside your family.
Stay informed with Livabl updates on new community details and available inventory.