



















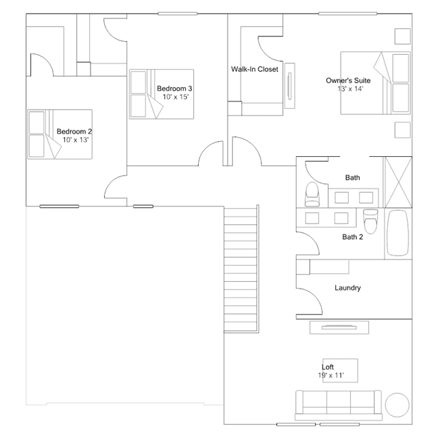
This two-story home is designed for comfort and convenience, with a first-floor Great Room thats a natural gathering place to watch movies, a gourmet kitchen with all-new appliances and a bedroom thats ideal for overnight guests. All the upstairs bedrooms, including the owners suite, have walk-in closets for added convenience, while a loft adds versatility.