
























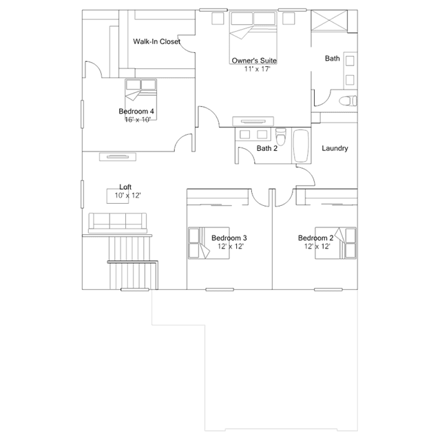
This new, two-story Next Gen home offers a first-floor private suite with a separate entrance, living room, bedroom, bathroom and kitchenette that enables relatives to live independently. In the main home is an open layout among the living spaces on the first floor, while upstairs a versatile loft is surrounded by four bedrooms.