










































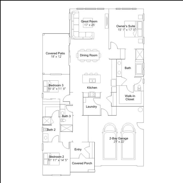
This new single-level home enjoys a seamless central living area shared by the kitchen, dining room and Great Room, that opens to a covered patio. Two secondary bedrooms, one with a private bathroom, can be found near the entry of the home, and the owners suite is situated at the end for maximum privacy.
Stay informed with Livabl updates on new community details and available inventory.