











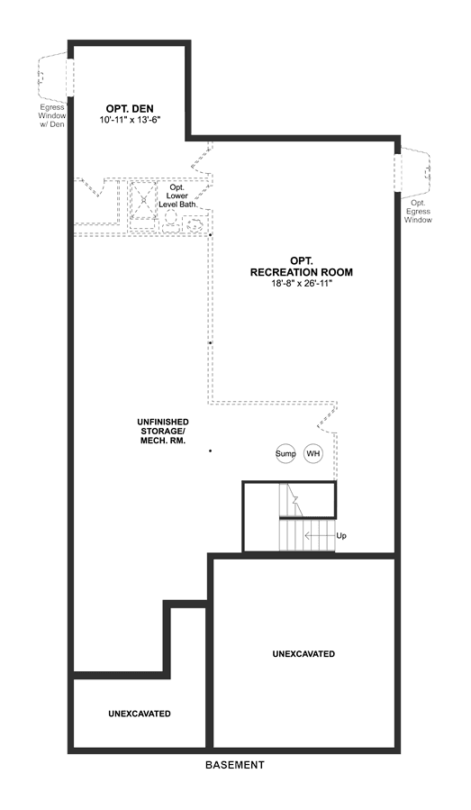
Private home office and secondary bedroom off foyer. Impressive chef’s kitchen with a large island and pantry. Spacious great room adjacent to cozy dining area. Luxurious owner’s suite with walk-in closet. Elegant owner’s bath with dual sinks and walk-in shower. Expansive front porch to enjoy the outdoors. Convenient optional basement.