











Images coming soon
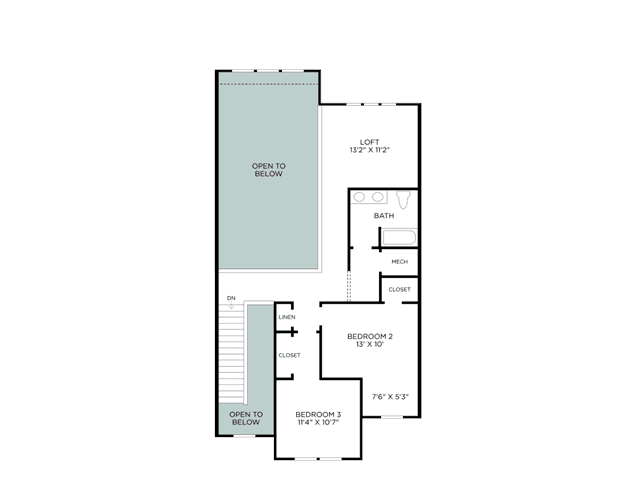
Deluxe design and style. The Macaw's welcoming porch and stunning two-story foyer flow into the spacious great room and dining room, with views to the desirable covered lanai beyond. The well-equipped kitchen is enhanced by a large center island with breakfast bar, plenty of counter and cabinet space, and roomy pantry. The private primary bedroom suite is highlighted by a sizable walk-in closet and spa-like primary bath with dual-sink vanity, large luxe shower, and private water closet. Central to a generous loft, secondary bedrooms feature ample closets and shared hall bath with dual-sink vanity. Additional highlights include a convenient powder room, centrally located laundry, and additional storage.
Stay informed with Livabl updates on new community details and available inventory.