
































































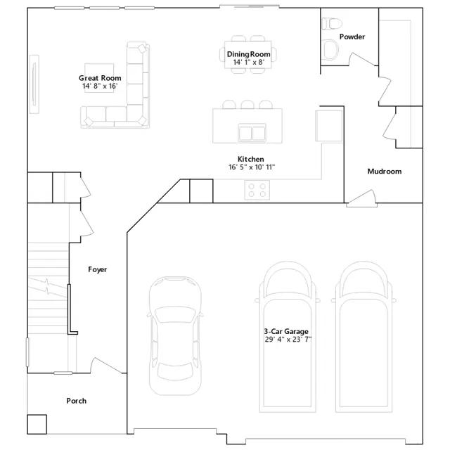
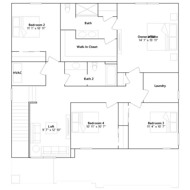
The first floor of this new two-story home features an open-concept Great Room which blends seamlessly into the modern kitchen and dining room, perfect for everyday living and entertainment. Found upstairs is a versatile loft surrounded by all four bedrooms, including the serene owners suite with an adjoining bathroom. An enviable three-car garage provides abundant storage space.
Stay informed with Livabl updates on new community details and available inventory.