




















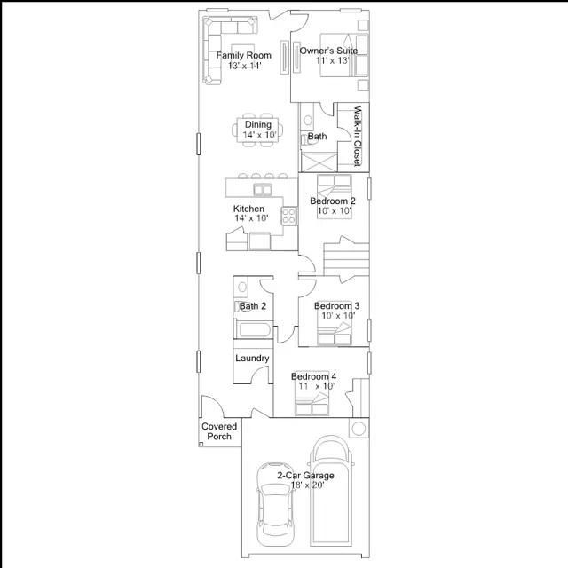
Welcome to The Hoffman, where luxury and functionality blend seamlessly in this exquisite single-level home. Designed with an expansive open floorplan, the heart of the home features a beautifully integrated kitchen, dining area, and family room, perfect for hosting gatherings and creating lasting memories. The gourmet kitchen is a chefs delight, equipped with stainless-steel appliances. The owner's suite, situated at the front of the home for added privacy, offers a peaceful retreat complete with a spacious en-suite bathroom and walk-in closet. Three additional bedrooms are conveniently located off the main living area, providing cozy accommodations for family or guests. Step outside to your own private sanctuary! The inviting backyard and patio are ideal for outdoor dining, relaxation, and entertaining. Whether you're enjoying a sunny afternoon or a pea...
Stay informed with Livabl updates on new community details and available inventory.