









































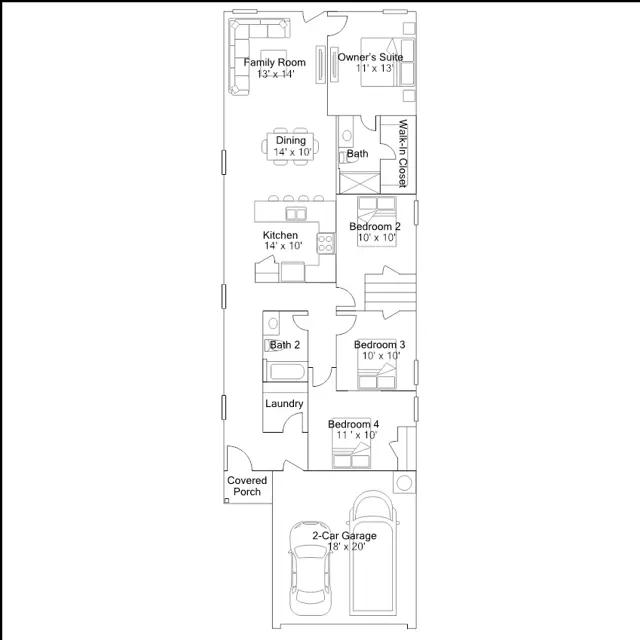
This single-level home showcases a spacious open floorplan shared between the kitchen, dining area and family room for easy entertaining. An owners suite enjoys a private location at the front of the home, complemented by an en-suite bathroom and walk-in closet. There are three secondary bedrooms just off the main living areas, which are comfortable spaces for household members and overnight guests.
Stay informed with Livabl updates on new community details and available inventory.