















































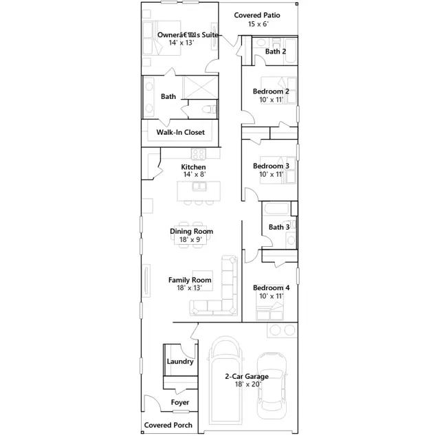
This new four-bedroom home offers convenient single-floor living. An open-concept design blends the kitchen, dining room and family room for optimal multitasking and everyday transitions. A nearby covered patio provides effortless outdoor recreation. Three secondary bedrooms are tucked away to the side of the home, and the luxurious owners suite is nestled into a private rear corner, complete with a full bathroom and walk-in closet.
Stay informed with Livabl updates on new community details and available inventory.