

















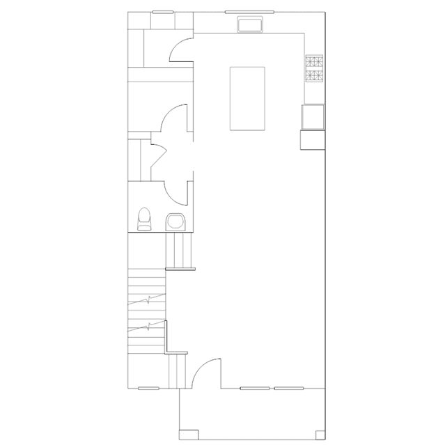
This three-story townhome-style condos features a convenient bedroom suite on the first floor while the second floor is dedicated to the open living space among the family room, contemporary kitchen and dining area. Two more bedrooms are on the top floor, including the owners suite.