




























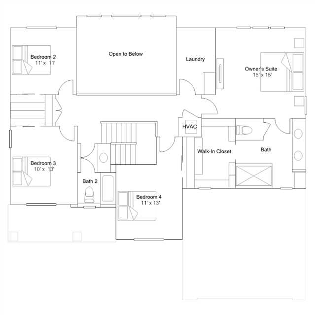
This large two-story home showcases a great design with a flexible first-floor office and formal living room in addition to the open layout among the family room, dining area and kitchen. With five bedrooms in total, four are located on the second level including the owners suite with a full-sized bathroom and walk-in closet.