


































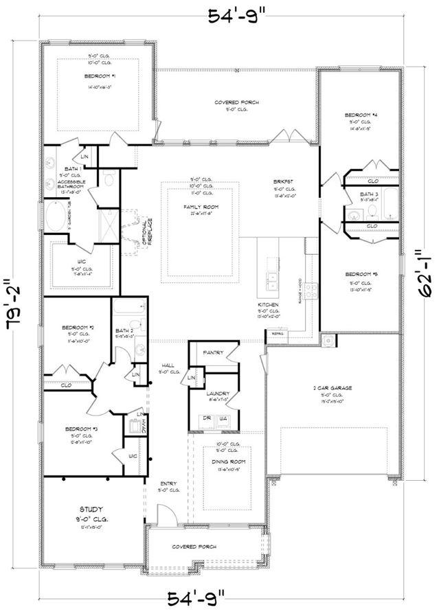
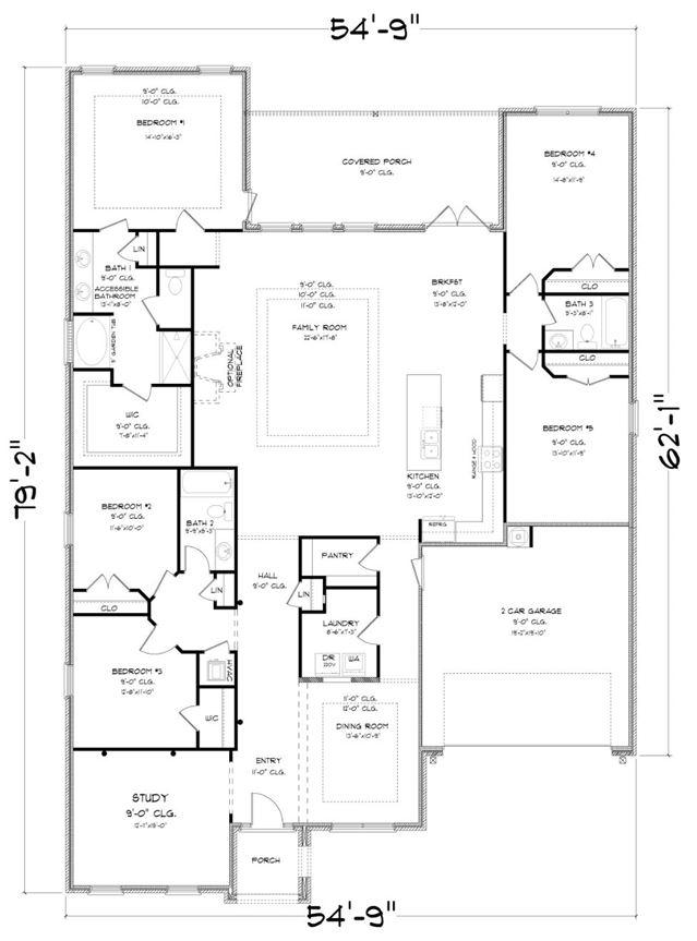
Welcome to The Mckenzie! At over 3,100 square feet, the McKenzie boasts 5-bedrooms, 3-bathrooms, a study and 2-car side entry garage. Entering the home from the front porch, you are greeted with a study and formal dining room. Further inside, there are two bedrooms that share a full bathroom. The great room offers an open design with a kitchen featuring an island and shaker-style cabinetry, quartz countertops and stainless-steel appliances and a breakfast area that leads to a covered porch. Just off the kitchen, you will find a walk-in pantry and separate laundry room. Nestled behind the breakfast area, are two bedrooms that share a full bathroom with a shower/tub combination. The primary bedroom has separate access to the back covered porch and an ensuite that features a linen closet, double vanity, tiled shower, garden tub, large walk-in closet and a sepa...
Stay informed with Livabl updates on new community details and available inventory.