



























































































Images coming soon
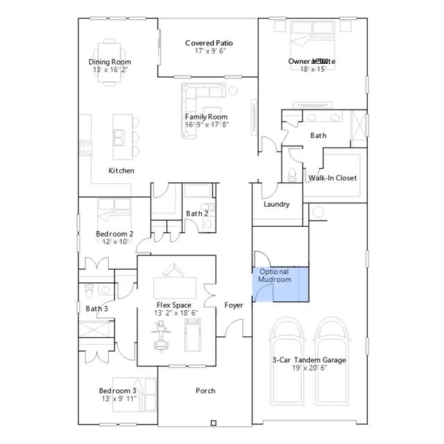
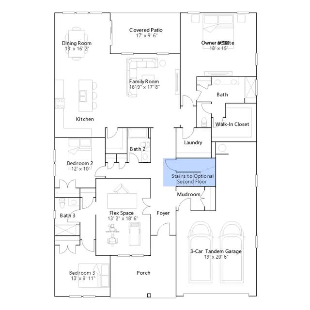
This single-story home comes with a great layout, as well as optional upgrades and additions at select homesites. It features an open layout shared by the kitchen, family room and dining room that leads to covered patio, along with a mudroom, versatile flex space and three bedrooms including the luxe owner's suite. Options include a screened in patio and second floor addition with a bonus room and fourth bedroom.