































Get additional information including price lists and floor plans.
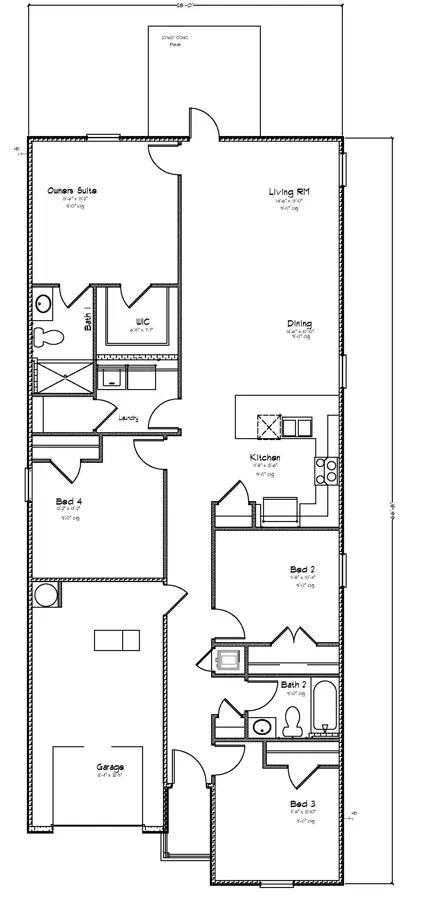
Welcome to the new Camilla floorplan in Revere at Independence in Spanish Fort, Alabama. This cozy cottage style home offers 4 bedrooms, and 2 bathrooms in a one-level home with 1,504 square feet of space. This home is as stylish as it is comfortable and flexible to suite your needs. In addition, this brand-new home includes a one-car garage. This home offers a great open concept main area from the kitchen to dining and living room leading to the outdoor area. Enjoy cooking with a gas range in the kitchen overlooking the dining area and the great room. The split bedroom plan ensures just the right amount of privacy. The primary bedroom will be your retreat as it includes an ensuite bath and a large open closet. The second and third bedrooms are located away from the primary bedroom and are separated by a second full bathroom featuring a linen closet. The fourth...
Stay informed with Livabl updates on new community details and available inventory.