









































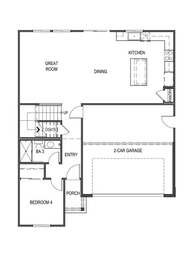
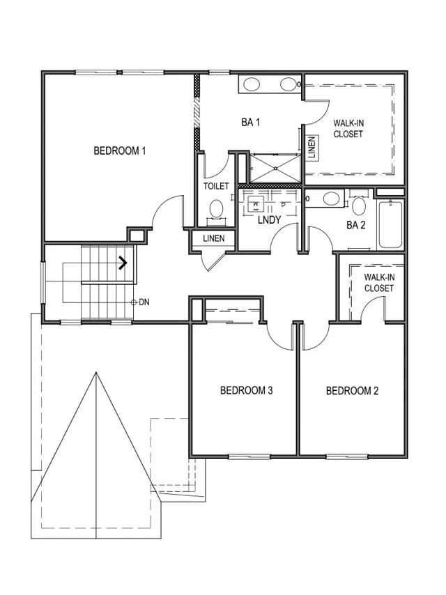
Our Yellowstone plan at Golden Eagle combines living space and eloquence. With three thoughtfully designed elevations and modern features throughout the house, this four-bedroom, three-bath house can comfortably fit friends, family, and guests, making it perfect for hosting and socializing. At 1975 sq. ft., this 2-story home offers a spacious open concept with one bedroom on the first floor and three on the second. On the first floor, theres the open-concept living area. The great room, dining area, and kitchen create a spacious environment. Youll find shaker-style cabinetry topped off with quartz countertops in the kitchen. The kitchen island provides extra counter space and a place to gather. On the first floor, youll also find a bedroom with easy access to the secondary bathroom. Heading to the second story is where youll find the primary bedroom. With an ...
Stay informed with Livabl updates on new community details and available inventory.